Береговой
121 992 ₽/м2
В ипотеку от 5.99%
45 123 ₽/мес.
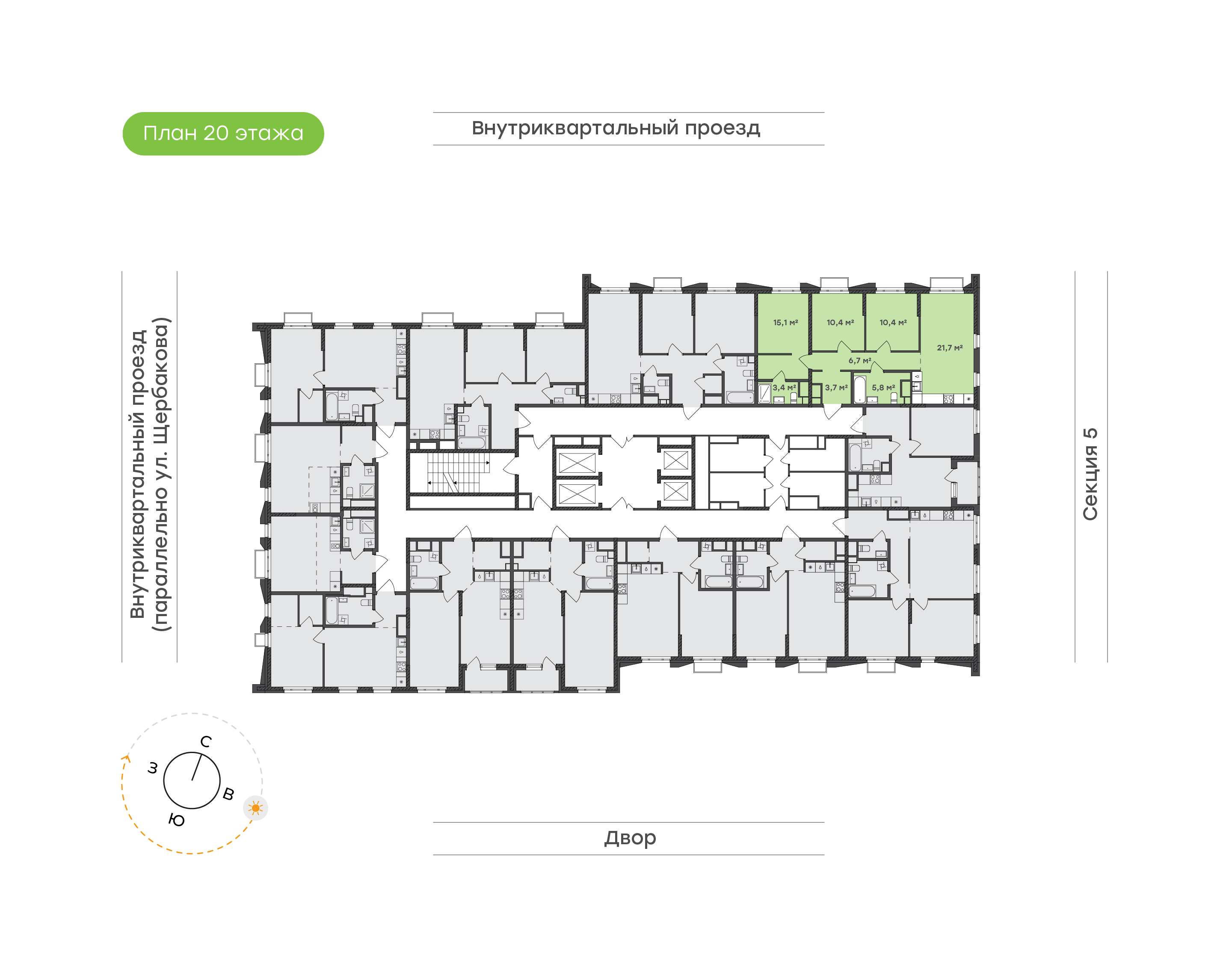
| Комнатность | 3+ | 
| Этаж | 20/24 | 
| Общая площадь | 77.2 м² | 
| Срок сдачи | Январь 2028 | 
| Срок заселения | Февраль 2028 | 
| Очередь | 1 | 
| Отделка | Предчистовая | 
| Дом | 1 | 
| Подъезд | 4 | 
Дополнительно:
Преимущества квартиры
- Идеальное зонирование для комфортной жизни семьи
 - Кухня-гостиная с тремя окнами — светлое, просторное пространство для встреч, семейных ужинов и отдыха
 - Мастер-спальня — уединённая зона комфорта. В комнате предусмотрено место под систему хранения и личный санузел с возможностью установки душевой кабины — комбинация, создающая атмосферу уюта и свободы
 - Детская зона включает две просторные комнаты, каждая с удобными местами для хранения. Здесь можно организовать пространство для сна, учёбы и игр, не перегружая комнаты лишними деталями
 - Основной просторный санузел с ванной и местом под стиральную машину идеально подойдёт для всей семьи
 - Функциональная прихожая с местами для хранения. Вещи всегда под рукой, но не на виду
 
Способы оплаты
Ипотека на квартиры в новостройке
Воспользуйтесь ипотекой от аккредитованных банков и получите одобрение на привлекательных условиях
Trade-in
Получите возможность выгодно и быстро обменять свою старую квартиру на новую недвижимость
Рассрочка
Специальные условия
Семейная - 5,99 %
Для семей с детьми
Сумма кредита
до 6 000 000 ₽
Первоначальный взнос
от 20 %
Цена квартиры
Первоначальный взнос
Сумма кредита
Срок кредита
Семейная - 5,99 %
Для семей с детьми
Сумма кредита
до 6 000 000 ₽
Первоначальный взнос
от 20 %
Сумма платежа неокончательная. Для уточнения информации или консультации по доступным программам кредитования отправьте заявку. Наш менеджер свяжется с вами
Инфраструктура
Семейный квартал «Береговой» расположен в перспективном районе Екатеринбурга — Уктус, где большие зелёные зоны сочетаются с преимуществами городской жизни. В шаговой доступности находятся Нижне-Исетский пруд и лесопарк Уктусские горы. На территории квартала запланировано строительство детского сада, а рядом уже работает современная школа № 300. Для повседневных нужд на первых этажах предусмотрены коммерческие помещения и детские центры. Удобная транспортная развязка позволит быстро добраться до центра города или выехать на трассу в область.



