Береговой
Скоро в продаже
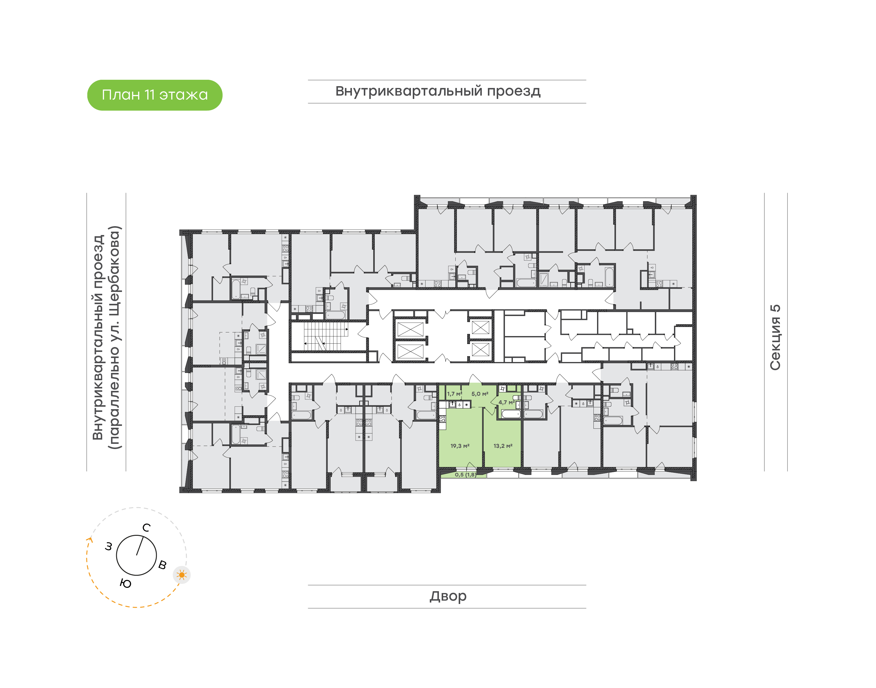
| Комнатность | 1+ |
| Этаж | 11/24 |
| Общая площадь | 44.4 м² |
| Срок сдачи | Январь 2028 |
| Срок заселения | Февраль 2028 |
| Очередь | 1 |
| Отделка | Предчистовая |
| Дом | 1 |
| Подъезд | 4 |
Дополнительно:
Преимущества квартиры
- Идеальный вариант для самостоятельной жизни
- Кухня-гостиная с французским балконом — сердце квартиры, наполненное светом и уютом. Здесь удобно готовить, принимать гостей или отдыхать после долгого дня
- Спальня — место для отдыха и восстановления. Пространство продумано так, чтобы здесь было комфортно и уютно, а выделенная зона под вместительный шкаф поможет организовать хранение без перегруженности интерьера
- Санузел — стильный и функциональный. Достаточно места для всей необходимой сантехники, а грамотная планировка делает пространство удобным
- Прихожая встречает продуманным местом для хранения. Всё под рукой, но ничего лишнего — здесь легко поддерживать порядок и уют
Способы оплаты
Ипотека на квартиры в новостройке
Воспользуйтесь ипотекой от аккредитованных банков и получите одобрение на привлекательных условиях
Trade-in
Получите возможность выгодно и быстро обменять свою старую квартиру на новую недвижимость
Рассрочка
Специальные условия
Инфраструктура
Семейный квартал «Береговой» расположен в перспективном районе Екатеринбурга — Уктус, где большие зелёные зоны сочетаются с преимуществами городской жизни. В шаговой доступности находятся Нижне-Исетский пруд и лесопарк Уктусские горы. На территории квартала запланировано строительство детского сада, а рядом уже работает современная школа № 300. Для повседневных нужд на первых этажах предусмотрены коммерческие помещения и детские центры. Удобная транспортная развязка позволит быстро добраться до центра города или выехать на трассу в область.



