Береговой
Скоро в продаже
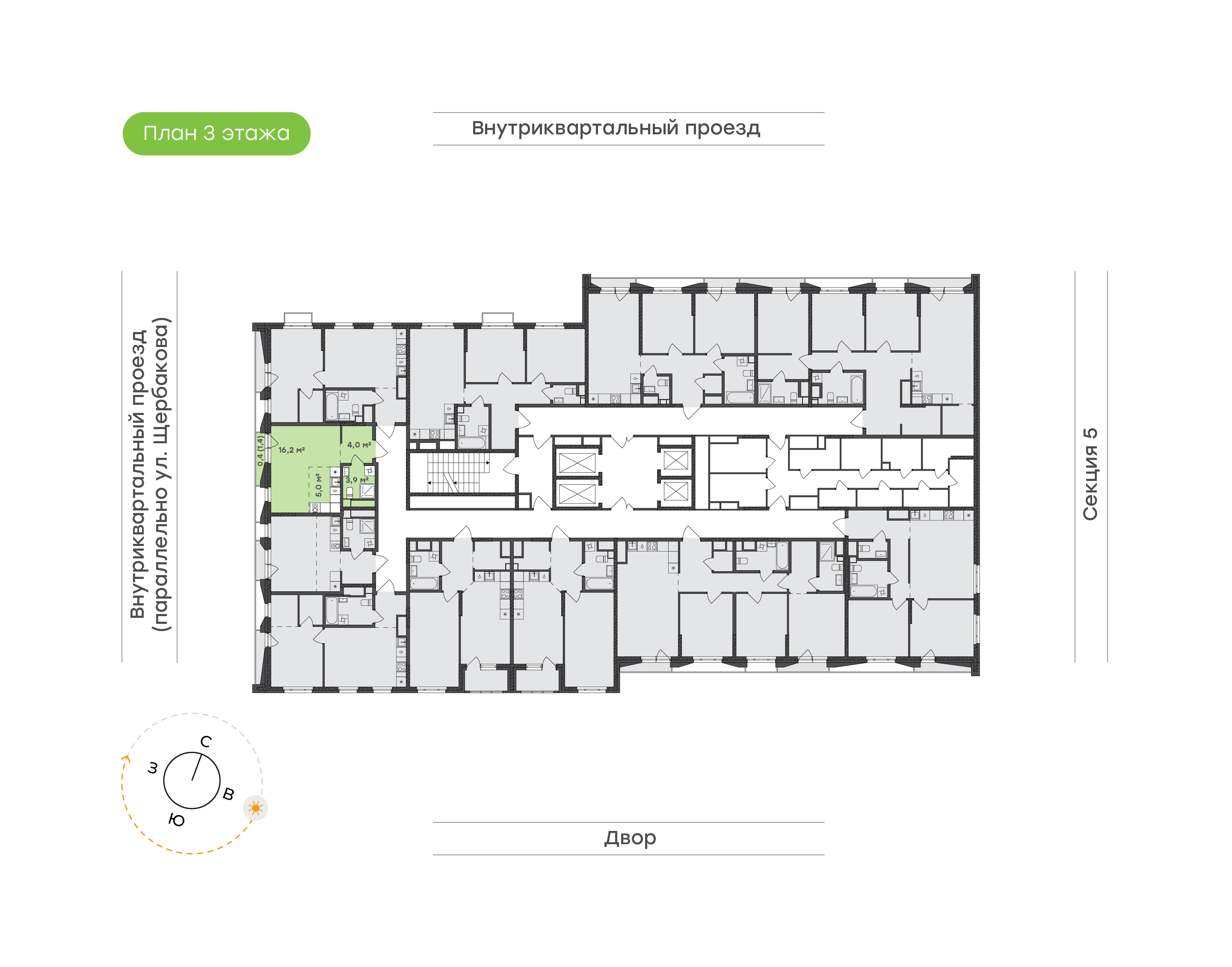
| Комнатность | Студия | 
| Этаж | 3/24 | 
| Общая площадь | 29.5 м² | 
| Срок сдачи | Январь 2028 | 
| Срок заселения | Февраль 2028 | 
| Очередь | 1 | 
| Отделка | Чистовая | 
| Дом | 1 | 
| Подъезд | 4 | 
Дополнительно:
Преимущества квартиры
- Атмосфера современного комфорта
 - Зона кухни воплощает утончённость и практичность, создавая пространство для утренних ритуалов и кулинарных экспериментов
 - Объединённая зона спальни с местом под хранение и гостиной дарит возможность безграничной свободы в организации интерьера, где уют и функциональность идут рука об руку.
 - Французский балкон делает пространство еще светлее
 - Санузел оборудованный местом под душевую кабину и стиральную машину, обеспечивает рациональные решения для ежедневного комфорта
 - Прихожая с продуманной системой хранения помогает легко и непринужденно поддерживать атмосферу порядка и стиля
 
Способы оплаты
Ипотека на квартиры в новостройке
Воспользуйтесь ипотекой от аккредитованных банков и получите одобрение на привлекательных условиях
Trade-in
Получите возможность выгодно и быстро обменять свою старую квартиру на новую недвижимость
Рассрочка
Специальные условия
Эта квартира на других этажах
Все предложенияИнфраструктура
Семейный квартал «Береговой» расположен в перспективном районе Екатеринбурга — Уктус, где большие зелёные зоны сочетаются с преимуществами городской жизни. В шаговой доступности находятся Нижне-Исетский пруд и лесопарк Уктусские горы. На территории квартала запланировано строительство детского сада, а рядом уже работает современная школа № 300. Для повседневных нужд на первых этажах предусмотрены коммерческие помещения и детские центры. Удобная транспортная развязка позволит быстро добраться до центра города или выехать на трассу в область.



