Город-парк
Скоро в продаже
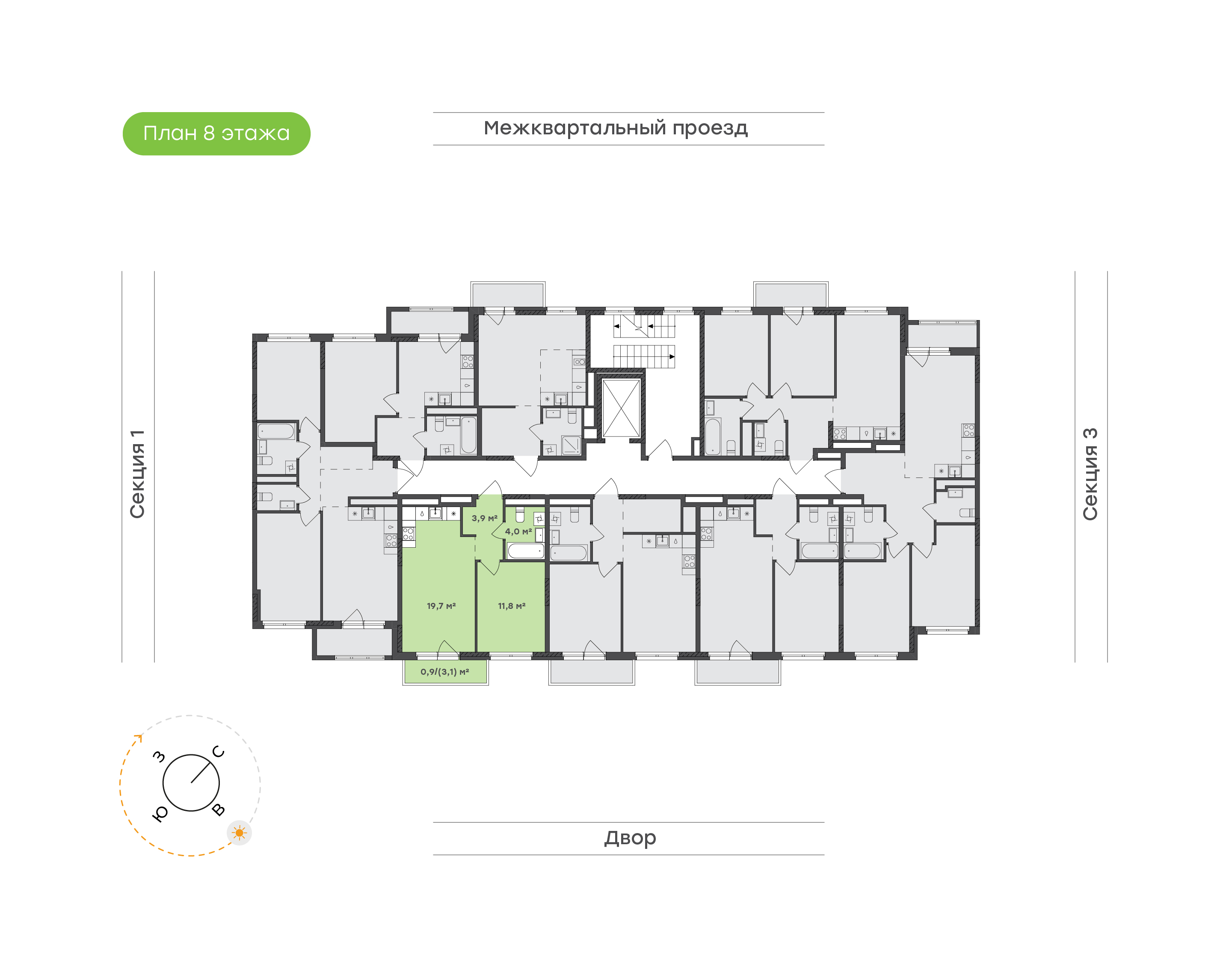
| Комнатность | 1+ |
| Этаж | 8/9 |
| Общая площадь | 40.3 м² |
| Срок сдачи | Декабрь 2027 |
| Срок заселения | Июнь 2028 |
| Очередь | 1 |
| Отделка | Предчистовая |
| Дом | 1 |
| Подъезд | 2 |
Дополнительно:
Преимущества квартиры
- Современное и удобное пространство для одного или пары.
- Площадь 40,3 кв.м. с объединенной зоной кухни, столовой и гостиной, а также отдельная спальня.
- Высота потолков 2,7 м.
- Кухня-гостиная 19,7 кв.м. — пространство для готовки, отдыха и ужинов.
- Приватная спальня для сна и отдыха.
- Уютная прихожая с местом под систему хранения.
- Совмещенный санузел с зоной под стиральную машину.
- Балкон — дополнение к жилому пространству: для отдыха или сезонного хранения.
- Европланировка для тех, кто ценит открытое пространство и функциональность.
3D туры
Инфраструктура
С самого начала мы думаем о тех, кто будет здесь жить. Проектируем зеленые и безопасные дворы, в которых дети смогут играть с удовольствием. Предусматриваем магазины и аптеки на первых этажах, чтобы все нужное было в шаговой доступности. Формируем идею собственной набережной для прогулок, рыбалки, отдыха на свежем воздухе. А для автомобилистов предусматриваем наземные паркинги. Недалеко от нового жилого района расположены крупные торговые центры: Лента, Metro, Лемана ПРО. Рядом расположены детские сады, школы, колледж и Ярушкинский дендропарк.



