Город-парк
Скоро в продаже
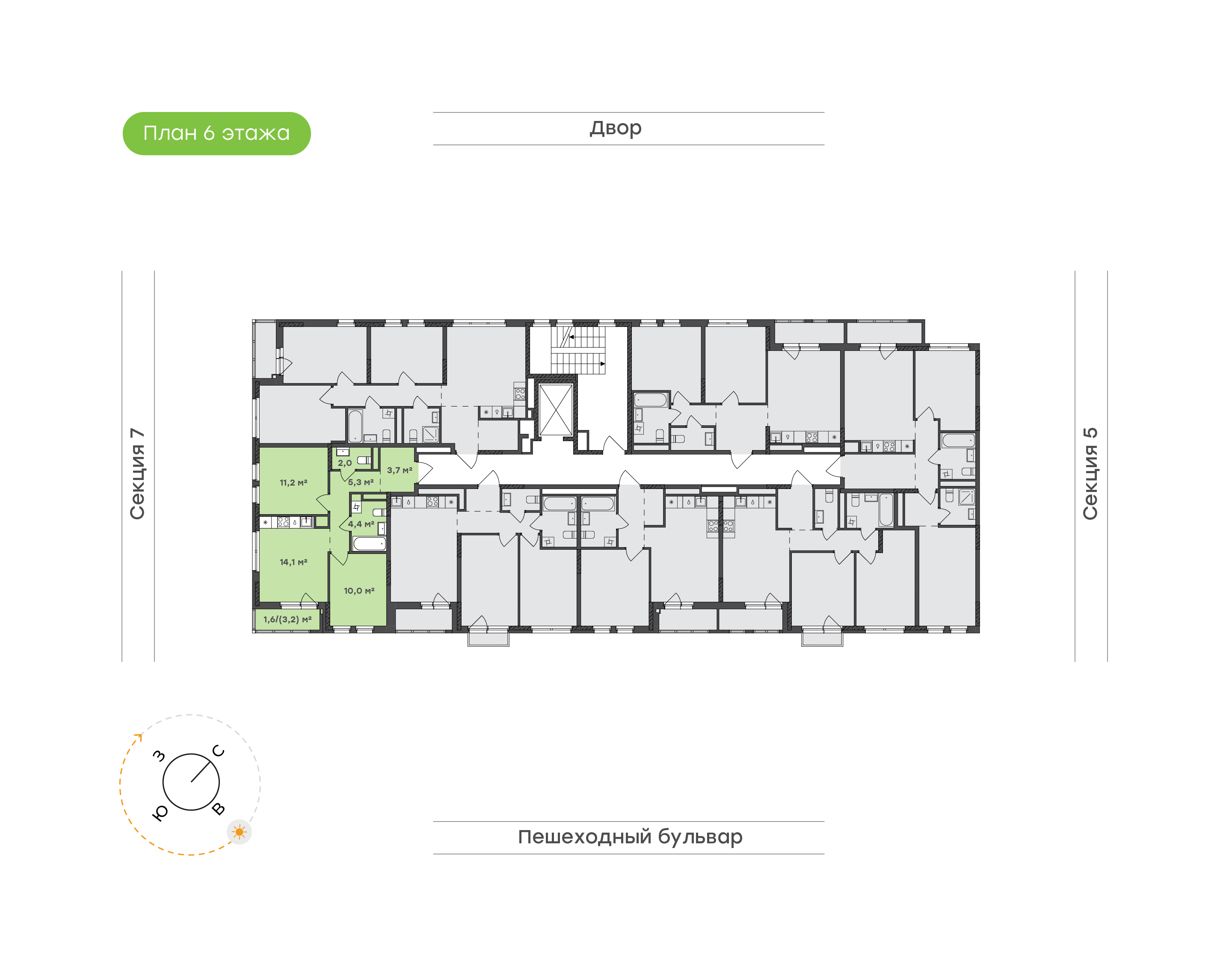
| Комнатность | 2 |
| Этаж | 6/9 |
| Общая площадь | 52.3 м² |
| Срок сдачи | Декабрь 2027 |
| Срок заселения | Июнь 2028 |
| Очередь | 1 |
| Отделка | Предчистовая |
| Дом | 1 |
| Подъезд | 6 |
Дополнительно:
Преимущества квартиры
- Просторная евро-планировка с окнами на две стороны света — идеальное решение для семьи, ценящей свет и пространство.
- Площадь 52,3 кв.м. с двумя спальнями, двумя санузлами, кухней-гостиной и продуманным зонированием.
- Потолки 2,7 м.
- Кухня 14,1 кв.м. — пространство для готовки, общения и семейных ужинов за общим столом.
- Две отдельные спальни обеспечивают комфорт и личное пространство.
- Два санузла, один из которых оснащен зоной под стиральную машину.
- Лоджия — дополнение к жилому пространству: для отдыха или сезонного хранения.
- Планировка, в которой приятно проводить время с семьей.
3D туры
Инфраструктура
С самого начала мы думаем о тех, кто будет здесь жить. Проектируем зеленые и безопасные дворы, в которых дети смогут играть с удовольствием. Предусматриваем магазины и аптеки на первых этажах, чтобы все нужное было в шаговой доступности. Формируем идею собственной набережной для прогулок, рыбалки, отдыха на свежем воздухе. А для автомобилистов предусматриваем наземные паркинги. Недалеко от нового жилого района расположены крупные торговые центры: Лента, Metro, Лемана ПРО. Рядом расположены детские сады, школы, колледж и Ярушкинский дендропарк.



