1
На бронь объекта недвижимости очередь из 1 человека
1
На бронь объекта недвижимости очередь из 1 человека
Выберите способ оплаты:
Дополнительно подобрать:
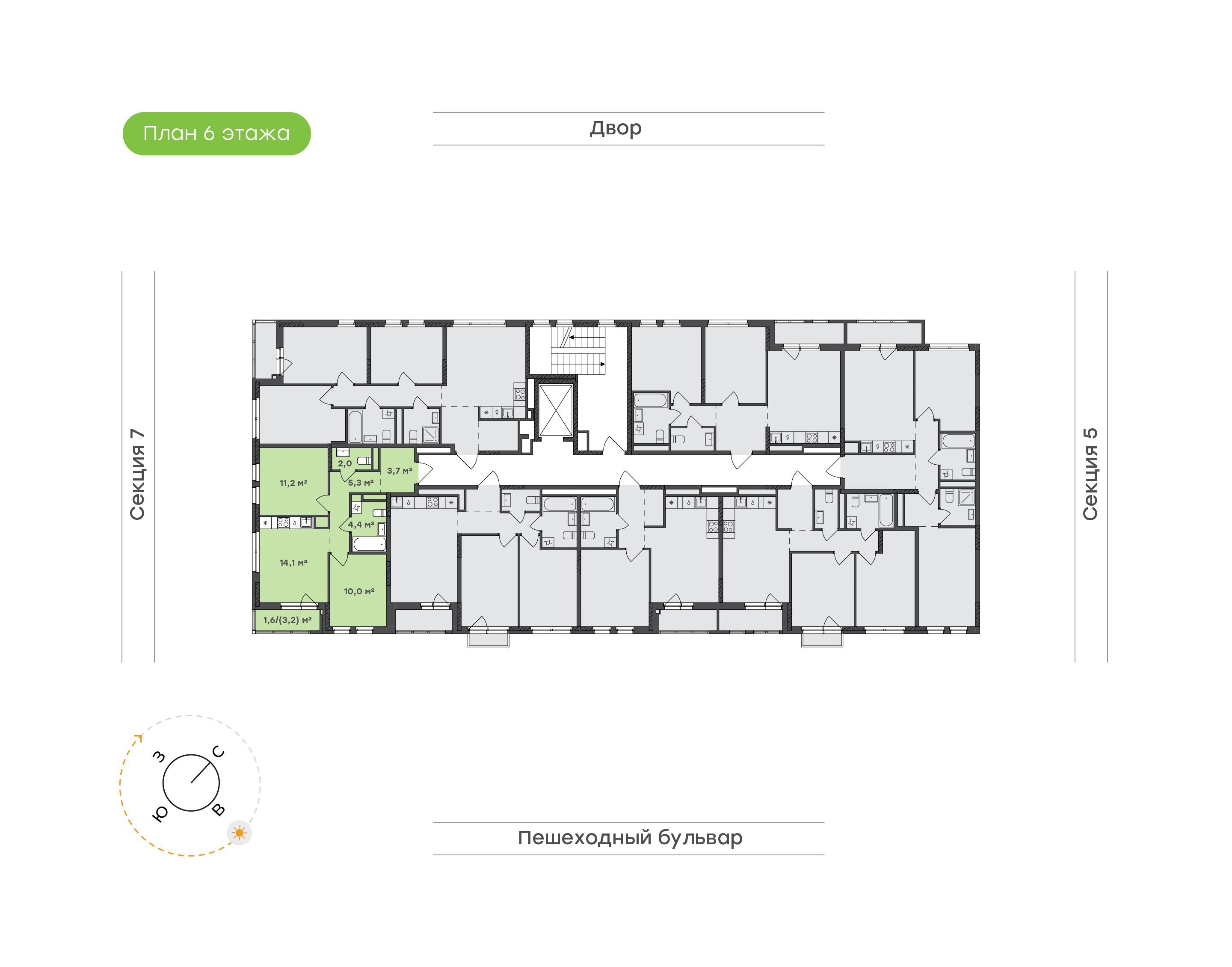
Характеристики квартиры:
ЖК
Город-парк
Дом
1
Подъезд
6
Этаж
6/9
Срок заселения
Июнь 2028
Комнатность
2
Общая площадь
52,3 м²
Отделка
Предчистовая
Преимущества квартиры
- Просторная планировка с окнами на две стороны света — идеальное решение для семьи, ценящей свет и пространство.
- Площадь 52,3 кв.м. с двумя спальнями, двумя санузлами, кухней-гостиной и продуманным зонированием.
- Потолки 2,7 м.
- Кухня 14,1 кв.м. — пространство для готовки, общения и семейных ужинов за общим столом.
- Две отдельные спальни обеспечивают комфорт и личное пространство.
- Два санузла, один из которых оснащен зоной под стиральную машину.
- Лоджия — дополнение к жилому пространству: для отдыха или сезонного хранения.
- Планировка, в которой приятно проводить время с семьей.
Похожие квартиры
3D туры
Инфраструктура
Рассчитайте ипотеку
Военная - 6 %
Для военнослужащих в рамках НИС
Сумма кредита
до 4 900 000 ₽
Первоначальный взнос
Первонач. взнос
от 30 %
Стоимость квартиры, ₽:
Первоначальный взнос, ₽:
0%
Сумма кредита, ₽:
Срок кредита, лет:
Сумма платежа неокончательная. Для уточнения информации или консультации по доступным программам кредитования отправьте заявку. Наш менеджер свяжется с вами
Военная - 6 %
Для военнослужащих в рамках НИС
Сумма кредита
до 4 900 000 ₽
Первоначальный взнос
Первонач. взнос
от 30 %
Предварительный ежемесячный платежот 29 378 ₽/мес
Сумма платежа неокончательная. Для уточнения информации или консультации по доступным программам кредитования отправьте заявку. Наш менеджер свяжется с вами
Мобильное приложение «Талан» для клиентов
Наше приложение будет полезным на всех этапах — от выбора квартиры до получения ключей и комфортной жизни в новом доме.
Подробнее о приложении




