Скоро в продаже
Характеристики коммерческого помещения:
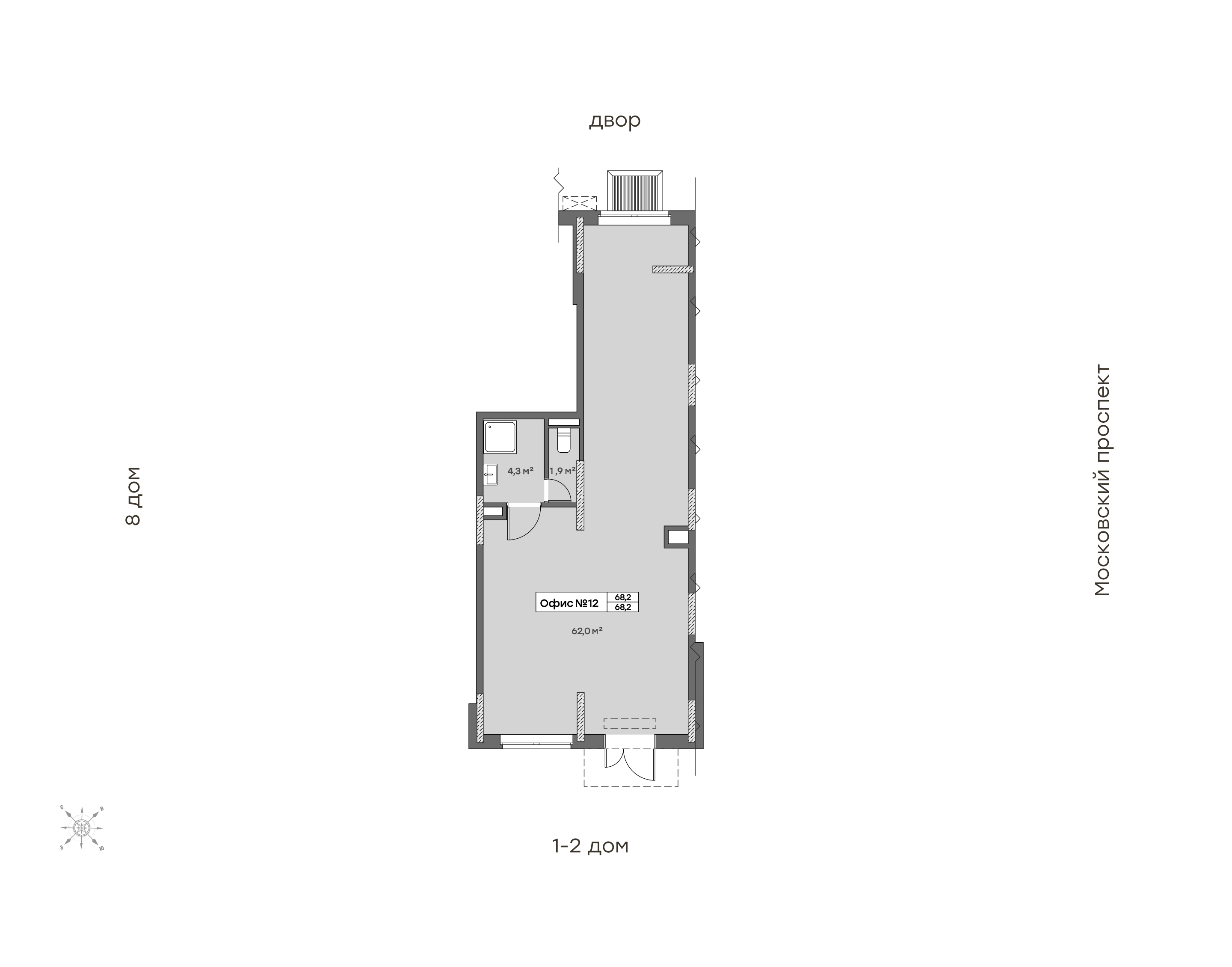
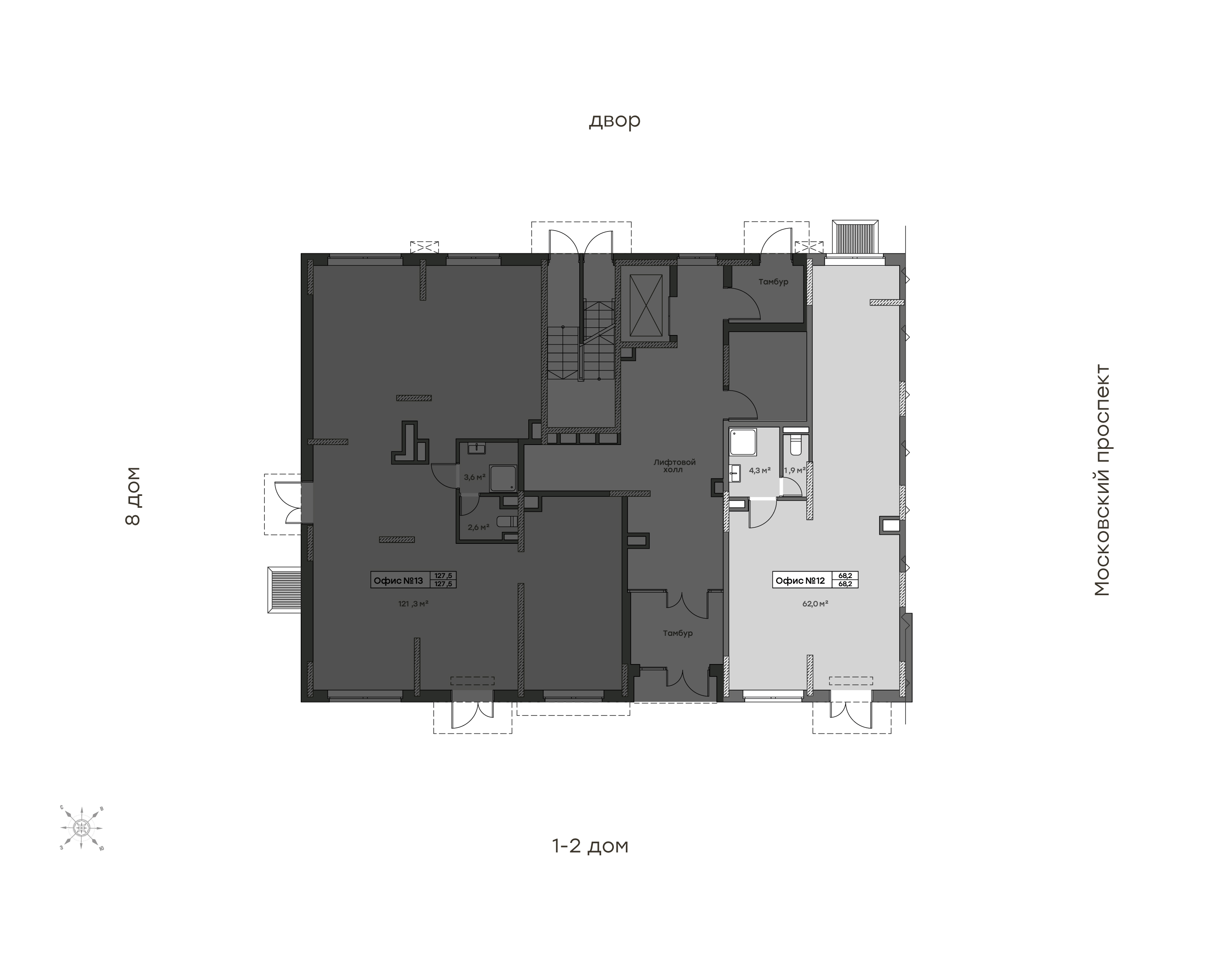
ЖК
Притяжение
Дом
7
Подъезд
8
Этаж
1/7
Общая площадь
68,2 м²
Отделка
Предчистовая
3D туры
Инфраструктура
Мобильное приложение «Талан» для клиентов
Наше приложение будет полезным на всех этапах — от выбора квартиры до получения ключей и комфортной жизни в новом доме.
Подробнее о приложении

