Сибирия
Скоро в продаже
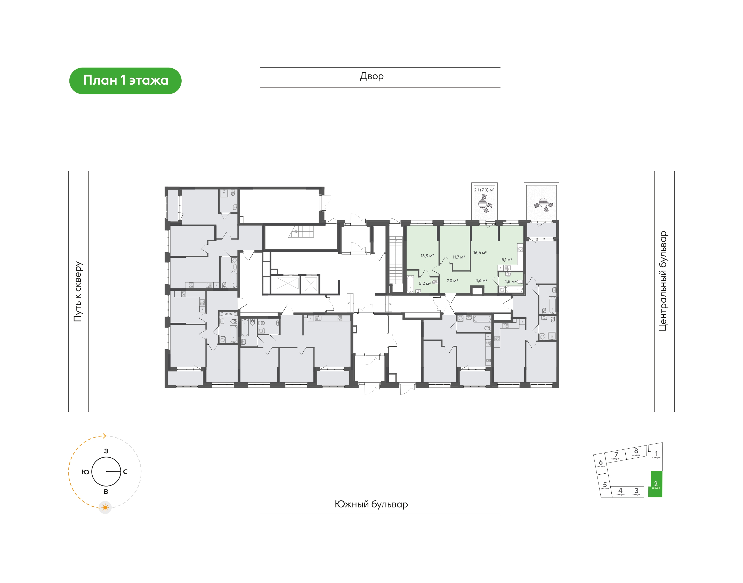
| Комнатность | 2+ |
| Этаж | 1/11 |
| Общая площадь | 70.7 м² |
| Срок сдачи | Март 2028 |
| Срок заселения | Август 2028 |
| Очередь | 1 |
| Отделка | Предчистовая |
| Дом | 1 |
| Подъезд | 2 |
Преимущества квартиры
- Идеальное зонирование для комфортной жизни семьи
- Кухня-гостиная — светлое, просторное пространство для встреч, семейных ужинов и отдыха. Выход на собственную террасу добавит разнообразие сценариев отдыха
- Мастер-спальня с собственной просторной ванной — уединённая зона комфорта. В комнате предусмотрено место под систему хранения и личный санузел с возможностью установки душевой кабины — комбинация, создающая атмосферу уюта и свободы
- Детская комната с удобными местами для хранения. Здесь достаточно пространство для сна, учёбы и игр
- Основной санузел с ванной и местом под стиральную машину идеально подойдёт для всей семьи
- Функциональная и просторная прихожая. Вещи всегда под рукой, но не на виду
Инфраструктура
Все необходимое для комфортной жизни — рядом, буквально на расстоянии вытянутой руки. Детские сады, школы, магазины, кафе, фитнес-центры, сервисные объекты — без длительных поездок и лишней спешки. В пределах кварталов работают собственные коммерческие помещения, где можно купить продукты, выпить кофе или воспользоваться бытовыми услугами, не покидая комплекса. Здесь сформирована полноценная инфраструктура высокого уровня, которая освобождает время для главного — семьи, отдыха и удовольствия от жизни.



