Новеллы
Скоро в продаже
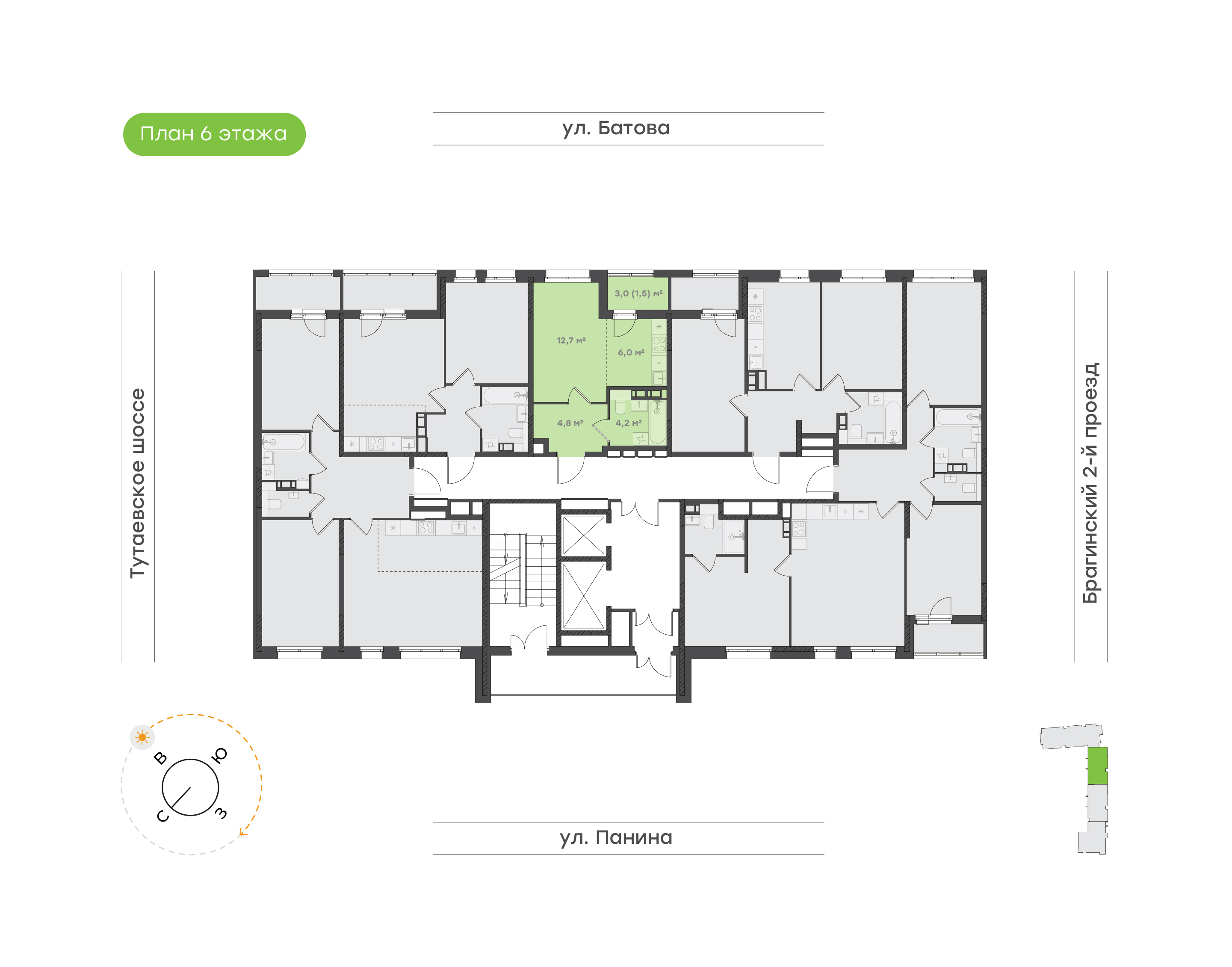
| Комнатность | Студия |
| Этаж | 6/18 |
| Общая площадь | 29.2 м² |
| Срок сдачи | Февраль 2027 |
| Срок заселения | Июль 2027 |
| Очередь | 4 |
| Отделка | Предчистовая |
| Дом | 1 |
| Подъезд | 16 |
Дополнительно:
Преимущества квартиры
- Функциональная студия
- Отлично зонированная квартира для молодой семьи или холостяков.
- Прихожая с нишей под шкаф-купе.
- Кухонная зона с выходом на лоджию, где можно организовать зону отдыха.
- Комната 12,7 кв.м.
- Совмещенный санузел.
Способы оплаты
Ипотека на квартиры в новостройке
Воспользуйтесь ипотекой от аккредитованных банков и получите одобрение на привлекательных условиях
Оставить заявку
Trade-in
Получите возможность выгодно и быстро обменять свою старую квартиру на новую недвижимость
Оставить заявку
Рассрочка
Специальные условия
Оставить заявку
3D туры

Инфраструктура
В пешей доступности — множество возможностей для семейного отдыха, занятий спортом, получения детьми качественного образования.



