Ботаника
Скоро в продаже
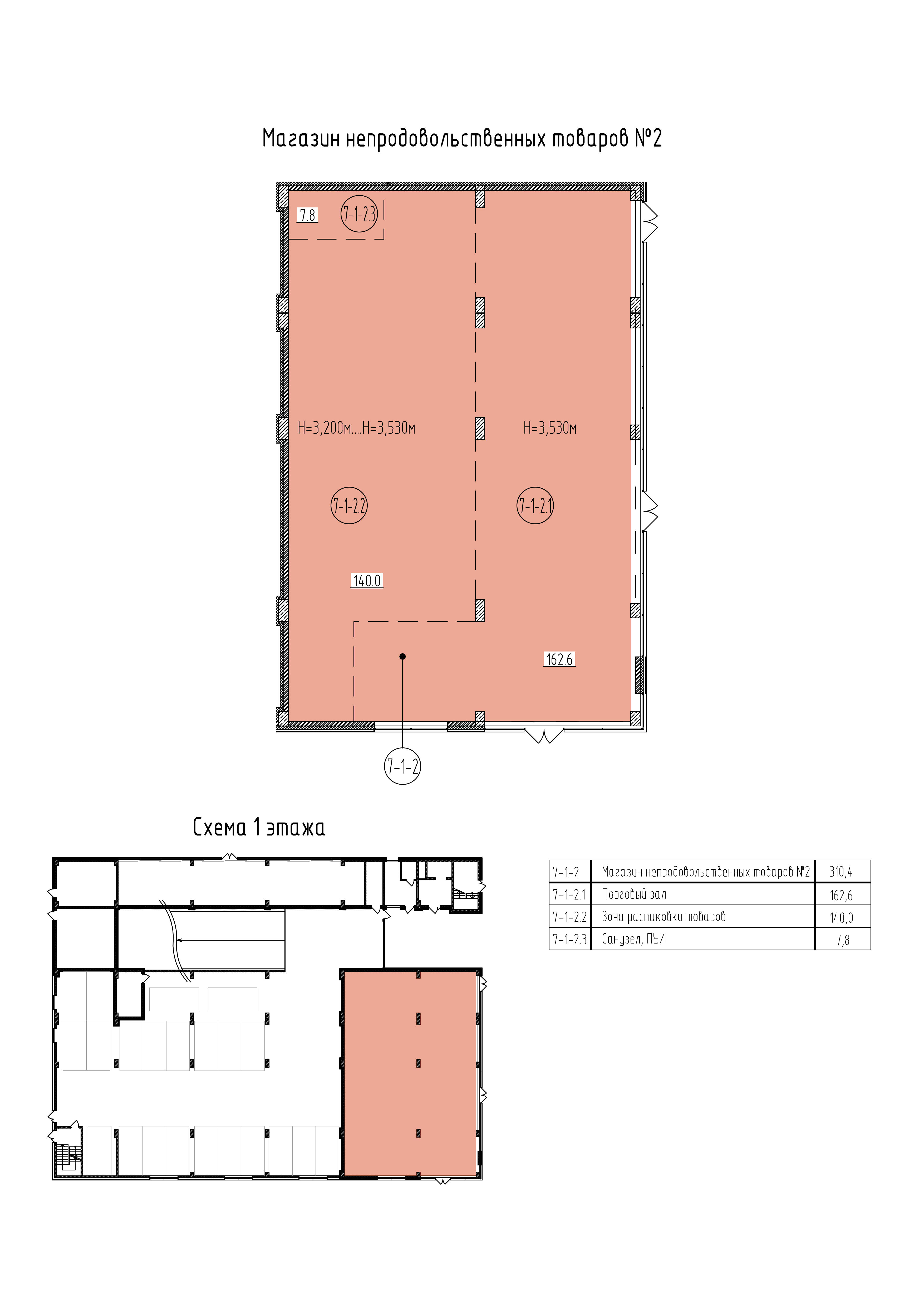
| Этаж | 1/7 |
| Общая площадь | 310.4 м² |
| Срок сдачи | Сентябрь 2027 |
| Срок заселения | Декабрь 2027 |
| Очередь | 3 |
| Отделка | Черновая |
| Дом | 7 |
| Подъезд | 7 |
Способы оплаты
Ипотека на квартиры в новостройке
Воспользуйтесь ипотекой от аккредитованных банков и получите одобрение на привлекательных условиях
Оставить заявку
Trade-in
Получите возможность выгодно и быстро обменять свою старую квартиру на новую недвижимость
Оставить заявку
Рассрочка
Специальные условия
Оставить заявку
3D туры
Инфраструктура
В шаговой доступности социальная инфраструктура Тюменской слободы — детское и взрослое отделения современной поликлиники, детские сады, гимназия, общеобразовательная школа и школа искусств, бары и рестораны на любой вкус, для детей есть вело- и скейт-площадки. Остановки автобусов находятся в радиусе 500 метров от домов.

