Новеллы
133 425 ₽/м2
В ипотеку от 6%
18 126 ₽/мес.
| Комнатность | Студия |
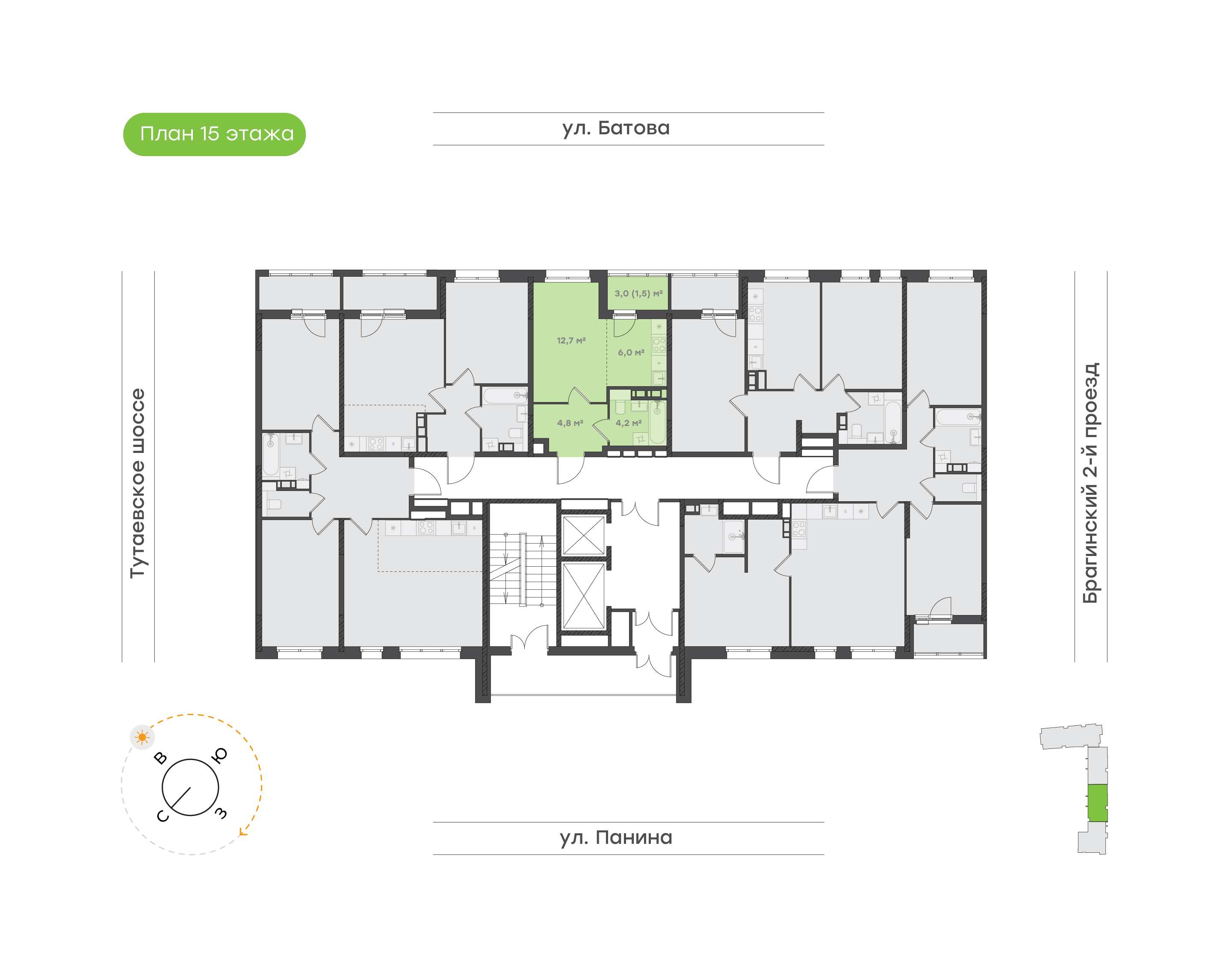
| Этаж | 15/18 |
| Общая площадь | 29.2 м² |
| Срок сдачи | Февраль 2027 |
| Срок заселения | Июль 2027 |
| Очередь | 4 |
| Отделка | Предчистовая |
| Дом | 1 |
| Подъезд | 15 |
Дополнительно:
Преимущества квартиры
- Функциональная студия
- Отлично зонированная квартира для молодой семьи или холостяков.
- Прихожая с нишей под шкаф-купе.
- Кухонная зона с выходом на лоджию, где можно организовать зону отдыха.
- Комната 12,7 кв.м.
- Совмещенный санузел.
Способы оплаты
Ипотека на квартиры в новостройке
Воспользуйтесь ипотекой от аккредитованных банков и получите одобрение на привлекательных условиях
Trade-in
Получите возможность выгодно и быстро обменять свою старую квартиру на новую недвижимость
Рассрочка
Специальные условия
Семейная - 6 %
Для семей с детьми
Сумма кредита
до 6 000 000 ₽
Первоначальный взнос
от 20 %
Цена квартиры
Первоначальный взнос
Сумма кредита
Срок кредита
Семейная - 6 %
Для семей с детьми
Сумма кредита
до 6 000 000 ₽
Первоначальный взнос
от 20 %
Сумма платежа неокончательная. Для уточнения информации или консультации по доступным программам кредитования отправьте заявку. Наш менеджер свяжется с вами
3D туры

Инфраструктура
В пешей доступности — множество возможностей для семейного отдыха, занятий спортом, получения детьми качественного образования.



